Территорию рядом с пивзаводом в Ярославле застроят многоэтажками

YarNews.net фото: Мэрия Ярославля Проект комплексного развития территории утвержден постановлением мэра Артема Молчанова.

YarNews.net фото: Мэрия Ярославля

Проект комплексного развития территории утвержден постановлением мэра Артема Молчанова.

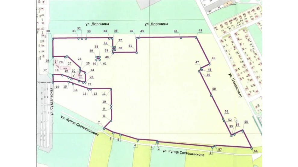
Речь идет о земле, ограниченной улицами Пожарского, Доронина, Суздальской и недавно появившейся улицей Купца Светешникова. Участок находится по соседству с пивзаводом и предприятием «Ярмолпрод». Общая площадь территории составляет 259  981 квадратный метр. КРТ предполагает возможность строительства 8-ми и 18-ти этажных домов, но точное их количество пока неизвестно. Территории понадобится проект планировки и межевания.

«Развиваемая территория расположена в границах территории, в отношении которой актуальная документация по планировке территории отсутствует. При реализации решения о комплексном развитии территории потребуется подготовка документации   по планировке территории, в соответствии с которой осуществляется ее комплексное развитие»,— отмечается в постановлении.

На территории под КРТ может таже появится три детских сада и школа на 1280 мест. На реализацию всего проекта отводится 12 лет. В ближайшее время будут организованы торги, которые определят инвестора данного земельного пространства.


Последние новости

Ярославские росгвардейцы помогли водителю, пострадавшему в ДТП

YarNews.net фото: Управление Росгвардии по Ярославской области Об этом сообщили в пресс-службе регионального управления ведомства.

Ярославских теневых банкиров будут судить в Брагино

YarNews.net фото: УМВД России по Ярославской области На скамье подсудимых окажутся четверка женщин и один мужчина.

В Ярославле дорожка на детской площадке ведет в пень

YarNews.net фото: ОНФ На проспекте Дзержинского. Эту историю опубликовали в телеграм-канале ярославского отделения ОНФ.

Когда скидки превращаются в ловушку: как маркетологи учат нас тратить

Почему “-50% только сегодня” не всегда значит выгоду, как скидки играют на эмоциях и почему даже рациональные люди становятся жертвами маркетинговых трюков.

На этом сайте вы сможете узнать актуальные данные о погоде в Георгиевске, включая прогнозы на ближайшие дни и часы

Комментарии (0)

Добавить комментарий

Ваш email не публикуется. Обязательные поля отмечены *